



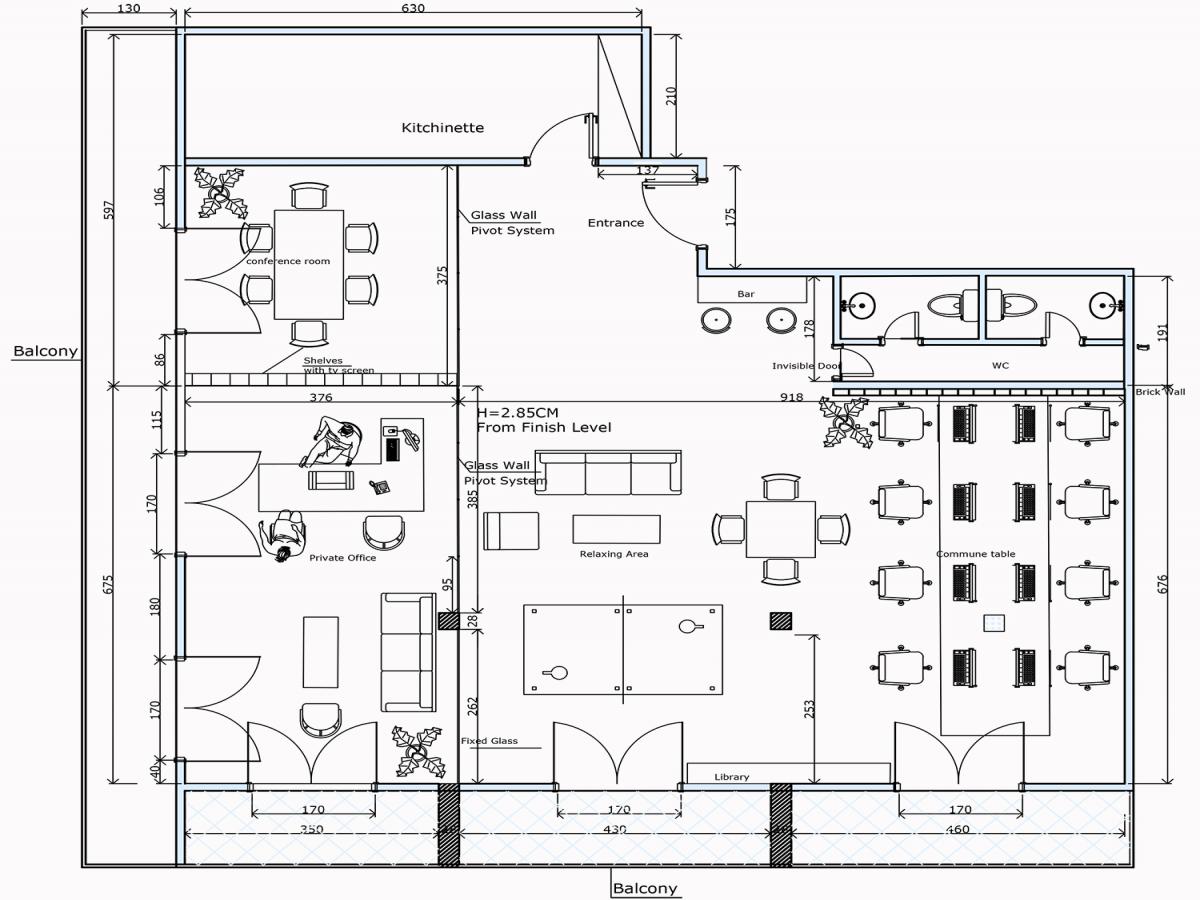
Lying in the vibrant downtown of Beirut, a young entrepreneur looked for an open space office. Breaking tradition, and so called open spaces, we turned the office space into a fun collective plot. A r...ed track lighting designates each zone of the office: communal work table, small circular table for smaller meetings, private desk, tennis table and meeting room. The brick wall holds a positive message above the concrete bar animating the atmosphere and lightening a casual stressful work day. >